Details
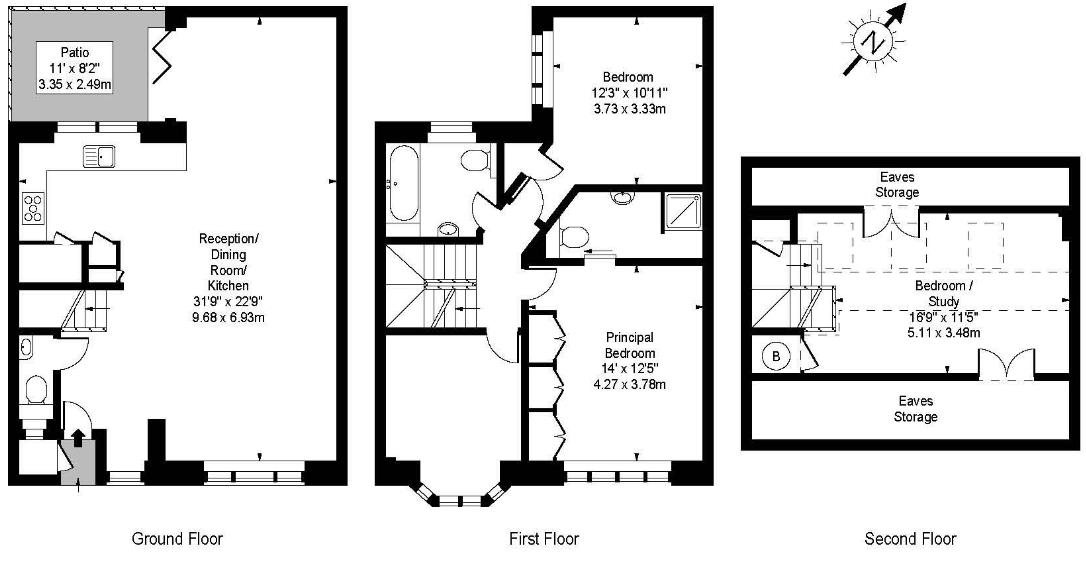
A recently refurbished mews house arranged over three floors in the heart of Little Venice. This beautiful house comprises a spacious open plan kitchen/reception room leading onto a private patio, generously proportioned principal bedroom with en suite shower room, three further bedrooms and a family bathroom suite. The house further benefits from a secure lock up garage.
- Four bedrooms
- Two bathrooms
- Guest WC
- Wooden flooring
- Patio
- Single garage





